





































18 Mt Robinson Road Torrens Vale SA 5203
Contact agents
**** Viewing Strictly by Appointment ****
***Available to view Saturday or Sunday Afternoon by Appointment***
Welcome to Your Own Piece of Paradise
Nestled in the picturesque Fleurieu Peninsula, this magnificent 69.46-hectare (171.64-acre) property offers the rare combination of serene natural beauty, rich history, and modern comforts-making it an exceptional opportunity for those seeking a private rural retreat.
The Land:
With spring-fed dams (11 in total), natural creeks, soaks, and gently undulating terrain, this land is a true masterpiece of nature. The fertile, well-drained glacial sand and sandy loam over clay soils offer excellent pastures, perfect for grazing cattle, while the stunning native vegetation and rolling elevations provide a sense of peace and seclusion. This property is well-fenced, with primarily good-quality barb and metal pine post fencing, ensuring functionality for a range of farming pursuits.
The House:
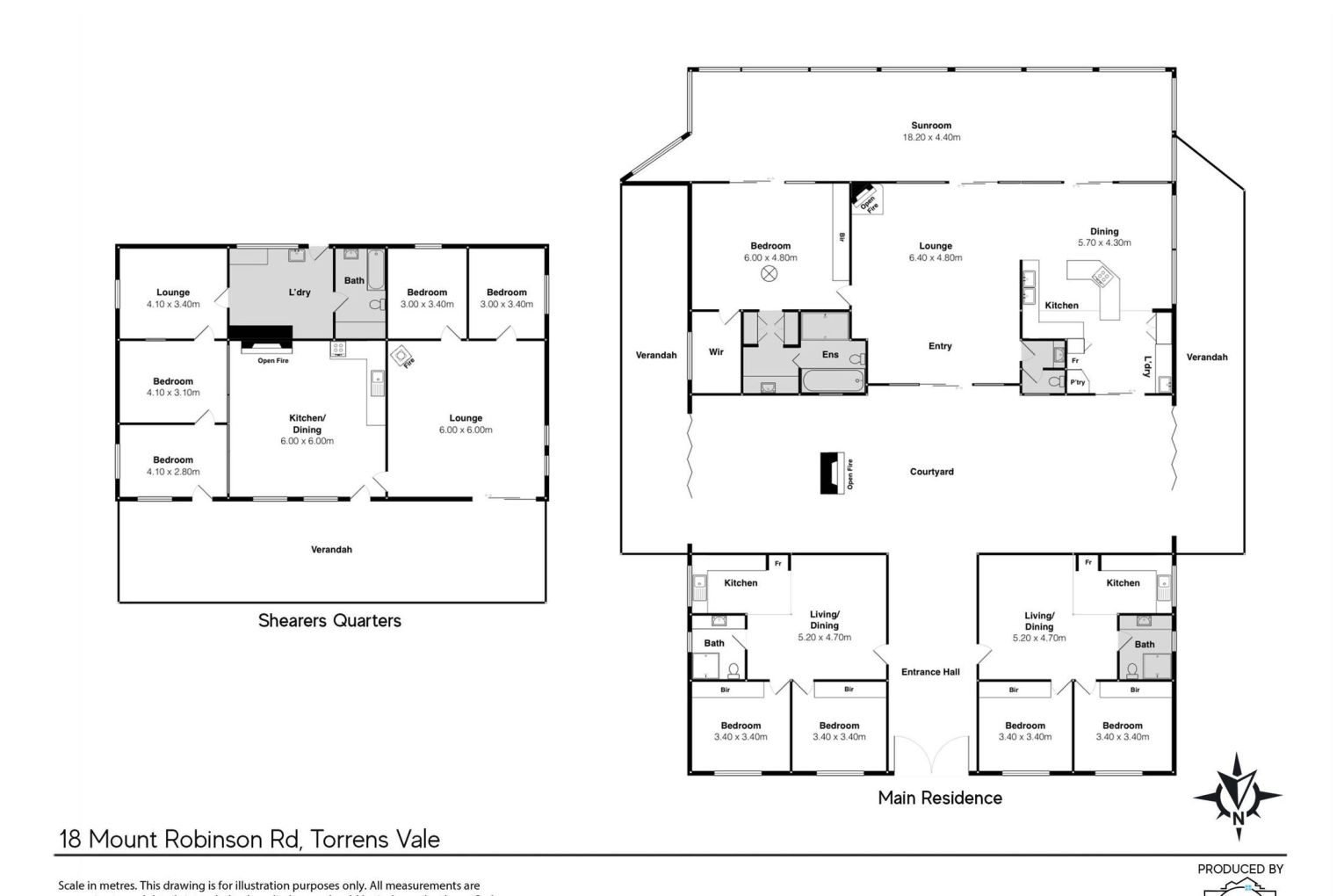
Designed with both comfort and character, ‘Agnes Clara’ residence is a 5-bedroom stone home, built in 2000, showcasing the craftsmanship of renowned stone mason Laurie Slatter. Constructed from over 1,000 tonnes of locally sourced glacial stone, the home harmoniously blends with its surroundings. Many of the stone walls were handcrafted from the property’s own small stone quarry, with multi-coloured quartz stone that sparkles in the sunlight, lending a touch of artistry and elegance to the walls as the day progresses.
The residence offers expansive living spaces, including a grand central courtyard with remarkable Chinese Elm entrance doors that are believed to be 150 to 200 years old and sourced from a province north of Shanghai. Inside, the property boasts a huge sunroom (18.2m x 4.4m) offering breathtaking views across the property, multiple open fireplaces, and a large open plan living, dining, and kitchen area adorned with stunning flagstone flooring. The master suite features a walk-in robe and ensuite. Underfloor heating is a fantastic feature for the main residence.
Self-Contained Guest Accommodation:
In addition to the main residence, there are two self-contained two-bedroom units, each with its own bathroom and kitchenette. These units are perfect for family accommodation, multi-generational living, tourist accommodation, or even Airbnb rentals. With their tranquil outlooks and seclusion, they offer a unique opportunity to host guests or enjoy additional privacy.
Shearers Quarters:
The property also includes a 4-bedroom shearers’ quarters with a separate lounge, dining and kitchen areas, large laundry, and full-sized bathroom. This building has fairly good bones but does require some work, offering the potential for staff or additional guests.
Outbuildings & Farm Infrastructure:
The property is well-equipped for a range of farming and storage needs. Key features include:
• 4-bay high-access implement shed
• 7-bay carport
• 12m x 7m workshop
• An additional 2-bay carport
Additional Features:
• 58 Ml Water Licence (taking)
• Cattle yards for livestock management
• Beautifully maintained fencing, suitable for cattle grazing
• Electricity connected to the property
Location:
This idyllic property is located just 22km west of Victor Harbor (23 minutes’ drive), 41.3km from Aldinga (38 minutes), and approximately 85km south-west of Adelaide (78 minutes), offering the perfect blend of privacy and convenience.
Whether you’re looking for a peaceful rural escape, a working cattle property, or a luxurious family retreat, this stunning estate offers endless possibilities.
Live the dream. Embrace your own piece of paradise.
Disclaimer: We have in preparing this information used our best endeavours to ensure that the information contained herein is true and accurate but accept no responsibility and disclaim all liability in respect of any errors, omissions, inaccuracies or misstatements that may occur. Prospective purchasers should make their own enquiries to verify the information contained herein. RLA 62833
Want to see more stories from InDaily SA in your Google search results?